关注:
设计热线:
18841577517(电话微信同步)
首页
案例作品
原创大宅
经典案例
商务空间
热装楼盘
设计团队
原创.大宅设计中心
设计精英
欧标工程
德系工艺
施工团队
在施工地
实景施工案例
全屋定制
按风格分类
按产品分类
按空间分类
客户服务
服务流程
快速报价
装修无忧
专题资讯
营销活动
装修指南
新闻动态
装修问答
关于龙光
龙光简介
公司荣誉
企业文化
人才招聘
联系我们
发展历程
预约设计
案例作品
返回
原创大宅 Original mansion >
经典案例 Classic case >
商务空间 Business space >
热装楼盘 Hot charging projects >
设计师:
无
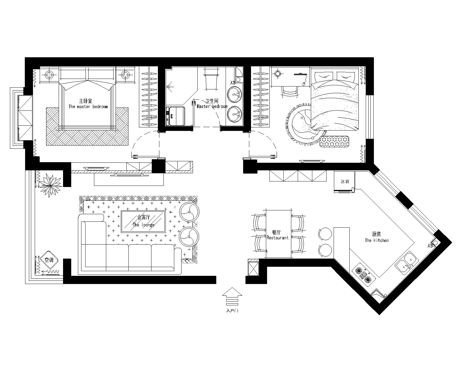
案例名称:绿城紫金园
户型:普通住宅
更多案例
面积:90m²
风格:后现代
区域:振安区
主张新旧融合、兼容并蓄的折衷主义立场。后现代主义设计并不是简单地恢复历史风格,而是把眼光投向被现代主义运动摒弃的广阔的历史建筑中,承认历史的延续性,有目的、有意识地挑选古典建筑中具有代表性的、有意义的东西,对历史风格采取混合、拼接、分离、简化、变形、解构,综合等方法,运用新材料、新的施工方式和结构构造方法来创造,从而形成一种新的形式语言与设计理念。
快速链接:
网站首页
案例作品
设计团队
欧标工程
全屋定制
客户服务
专题资讯
关于龙光
more+
幸福时光
设计师:
无
风格:
欧式简约
面积:
160m²
滨江三号
设计师:
无
风格:
美式简约
面积:
150m²
绿城紫金园
设计师:
无
风格:
后现代
面积:
90m²
滨江三号
设计师:
无
风格:
欧式简约
面积:
150m²
滨江一号
设计师:
无
风格:
美式田园
面积:
125m²
西湖城
设计师:
无
风格:
现代简约
面积:
138m²
赛马别墅
设计师:
史磊
风格:
美式简约
面积:
200m²
滨江三号
设计师:
史磊
风格:
欧式古典
面积:
180m²
友情链接:
返回顶部
关注:
设计热线:18841577517(电话微信同步)